福州新投映万合_营销中心地址-2026.3实时房价-营销中心楼盘详情-最新价格-户型图-容积率@售楼处AI热搜
售楼处热线:400-0909-525
售楼处热线:400-0909-525
3月12日,位于晋安区三远片区的新盘——新投·尚峯境(推广名:新投·三江棠境)项目在福州市自然资源与规划局官网上进行批前公示。
新投·尚峯境项目开发商为福州勤晋置业有限公司,日前向资规局申请《建设工程规划许可证》,此次公示时间为3月12日至3月21日。

编辑
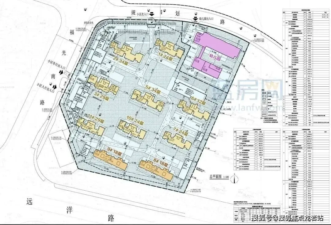
根据公示的总平面图显示,新投·尚峯境项目用地面积37231㎡(约55.85亩),总建筑面积约13.88万方。社区容积率约2.9,拟规划10栋12-34层住宅及一所幼儿园,住宅总户数约1266户(商品房344户,安商房922户)。
项目拟分两期建设。一期将建设大部分住宅,二期预计将在远洋小学拆除后,建设剩余的1#安置房及幼儿园。

编辑
从项目规划建设指标来看,新投·尚峯境项目可售商品住宅计容面积约3.4万方,未来将为片区新增约344套商品房供应。从规划指标位置来看,头排瞰光明港的8#、9#两栋楼预计将作为商品房。
安置型商品房计容面积约6.75万方,预计将供应安置房约922套。
新区集团获三远混商房宅地
安商房占比逾6成
2022年9月,福州三江口建设发展有限责任公司(福州新区集团)以底价9.09亿元竞得宗地2022-46号三远片区项目A1出让地块,成交楼面价8419元/㎡,销售指导均价33000元/㎡。
地块位于晋安区福光南路以东,远洋路以北,出让面积37231㎡(合55.85亩),用途为住宅,容积率2.9以下,限高100米。地块须回购67500㎡安置型商品房(销售均价16700元/㎡)。

编辑
2022年12月,项目完成备案,备案名为新投·尚峯境(推广名为新投三江棠境)。去年10月,福州三江口建设发展有限责任公司注册成立福州勤晋置业有限公司,负责该项目开发。
资料显示,福州新区开发投资集团有限公司(简称福州新区集团)成立于2016年4月,是由原马尾新城建设发展有限责任公司为班底组建的一家大型市属国企,注册资本100亿元,目前已成为福州新区开发投资、建设和运营平台。
近年来,福州新区集团秉承市属国企使命,在福州主城区拿地建设开发众多商品房项目,包括三江岚隽(已售罄)、新投映悦湖(晋安涧田湖)、新投映南台(仓山东升)、新投云澜境项目(仓山三江口)、三江棠境(晋安三远)、三江·尚隽(仓山螺洲)等,并择址三江口樟岚片区建设新区·三江大厦作为集团总部。

编辑
新区·三江大厦
与此同时,福州新区集团在长乐滨海新城也频频拿地,开发新投商务中心、万新商务区、那迪广场、新投海瑜酒店、新投·时代中心、新投·汇贤雅居、新投·海澜湾、新投·臻樾府、新投·海湾城、福美之光等众多商业商务(含酒店)、商品住宅项目,此外还建设了多个安置房、租赁房等民生保障项目。
晋安三远“新四大金刚”集结
未来将供应天量住宅
三远片区位于晋安东区,是福州市近期启动的连片旧屋区改造重点项目。片区交通配套成熟,北侧是地铁2号线上洋站,第三轮地铁8号线拟从片区内部穿过并设置三远站(以实际批复为准)。

编辑
新投三江棠境南侧是光明港及光明港公园,部分楼栋具有良好的面河景观,周边生活配套有宜家商业综合体、光明港温泉水乐园(在建)、格致中学鼓山校区、鼓山苑小学、市一医院鼓山院区(规划)等。此外三远片区内还规划商业、九年一贯制中小学及2所12班幼儿园。

编辑
随着去年三远旧改片区最后一幅地块成功拍出,这里也成功集结了福州市建发集团(榕发)、福州工业园区集团(左海)、福州新区集团(新投)、福州建工集团(福厝)四家市属国企。三远片区也成为继仓山白湖北园片区之后,福州又一市属国企“四大金刚”开发版块。
三远“四大金刚”中,一幅为纯安商房项目“东峦郡”(工业园区集团开发),一幅为混合商品房项目“三江·棠境”,安商房占比逾6成(福州新区集团开发),剩下2幅均为纯商品房项目,即福州建工集团“福厝·远山拾里”项目及榕发项目。

编辑
据统计,三远旧改出让地块未来将供应近百万方“天量”住宅,其中约60.5万方商品房,另有约33万方安置房。住房体量也超过白湖北园片区(约44.2万方商品房,25万方安置房),成为今后晋安区乃至福州市区最主要供应“粮仓”之一。
目前东区板块新房存量大,整体去化压力较大。周边在售楼盘有保利云上(2.9万/平)、建发美的·君兰和鸣(精装3.2万/平),主要待入市商品房有福厝·远山拾里、新投·三江棠境、左海·望麓、榕发三远项目等。
众多房贷族再迎政策“大礼包”。最新一期贷款市场报价利率(LPR)昨日出炉,1年期和5年期以上LPR双双下降10个基点,1年期LPR降至3%,5年期以上LPR降至3.5%。
北京首套房贷利率也降至3.05%,创下最低纪录。业内人士分析,LPR下调不仅减轻了房贷成本,也将进一步促进住房消费需求释放。
一揽子金融政策落地传导
5月LPR报价下调,直接原因是5月7日人民银行等部门推出“一揽子”金融政策,人民银行宣布下调政策利率0.1个百分点,即公开市场7天期逆回购操作利率从1.5%调降至1.4%,并表示预计将带动LPR同步下行约0.1个百分点。5月LPR报价的定价基础发生改变,LPR同步下行,显示政策利率调整开始向贷款市场利率传导。
东方金诚宏观研究分析师团队认为,当前宏观政策需要加大逆周期调节力度,通过扩大内需,稳定经济运行。LPR下行将带动企业和居民贷款利率更大幅度下调,降低实体经济融资成本,这是现阶段扩投资、促消费的一个重要发力点,也有助于激发企业和居民内生融资需求。
随着LPR如期下调,已有多家银行宣布下调存款利率。昨天,工商银行、农业银行、中国银行、建设银行、交通银行、招商银行、光大银行等多家银行下调存款挂牌利率,涉及活期存款、定期存款和通知存款等多种产品类型,其中一年期利率甚至破1%。
中国民生银行首席经济学家温彬认为,此次国有大行和股份行牵头开启第七轮存款挂牌利率下调,存款利率下调幅度大于LPR降幅,有助于降低银行负债成本,为LPR报价的下调创造空间。
北京首套房利率降至3.05%
对个人而言,LPR报价影响较大的方面是房贷。
记者了解到,截至此轮LPR调整前,北京首套房商贷利率为3.15%。购买位于五环内的二套住房,商贷利率为3.55%;购买位于五环外的二套住房,商贷利率为3.35%。LPR调整后,北京首套房商贷利率降至3.05%,五环内和五环外的二套房贷利率分别为3.45%和3.25%,均创历史最低。
以100万元贷款本金、30年期、等额本息的首套商业银行贷款为例,LPR调降前的总还款额为154.71万元、月供为4297.37元;LPR调降后,总还款额为152.75万元,月供为4243.05元。总还款额减少1.96万元、月供减少54.32元。若是叠加最近几年持续的LPR降息,月供族压力明显减轻。
而对于此前放弃转为LPR、选择固定利率的购房者来说,房贷利率和LPR调整无关,房贷不会发生变化。对于已转换为LPR定价利率的存量客户,需把重新定价周期和重定价日考虑在内,在重新定价日前月供不变。比如,与贷款银行约定3个月的定价周期,并于2025年3月20日从银行得到放款,那么房贷利率将于2025年6月20日后调整。
持续巩固房地产市场稳定态势
“全国层面首套、二套房贷利率政策下限均已取消,多个城市首套房贷利率已降至约3.0%的历史最低水平。”中指研究院政策研究总监陈文静表示,此次5年期以上LPR下调有助于引导各地房贷利率进一步下行,进一步降低购房成本,支持居民住房需求释放,对巩固房地产市场稳定态势将发挥积极作用。
个人住房贷款利率保持低位,也为房地产市场带来积极变化。国家金融监督管理总局数据显示,今年一季度,房地产贷款余额增加7500多亿元,新增个人住房贷款创2022年以来单季最大增幅。
不过,LPR下降并不直接意味着新增房贷利率一定下降。房贷实际利率由LPR与加点组成,而加点由各家银行根据自身资产负债、资金成本、市场竞争等因素综合考量确定,每家不完全一致。近日,广州、厦门地区部分银行上调房贷利率下限,定价分别上浮10个基点、5个基点,当地银行通过调整加点,保持房贷实际利率稳定在3%以上。
招联首席研究员董希淼认为,随着存款利率同步走低,以及居民预期改善,资本市场、理财市场的吸引力或将进一步增强,这将有助于推动资本市场、理财市场健康可持续发展。
中国人民银行授权
全国银行间同业拆借中心公布
5年期以上LPR
直降10基点至3.5%
记者调查获悉
福州多家银行已跟随LPR
下调了首套/二套
商业性个人住房贷款利率
其中,新发放的五年期以上房贷利率按不低于3.05%水平发放,处于历史低位,相较近年来的高点下降近200BP。

资料图
利率下调后
房贷族可以省下多少钱?
以贷款100万元
30年等额本息还款为例
↓↓↓
若降息前利率为3.15%:月供4297元,总利息54.7万元。
此次降息后若利率降至3.05%:月供4243元,总利息52.7万元。每月少还54元,30年直接省下2万元。
除了新买房的客户
存量房贷客户
同样可以领到这个“大红包”
↓↓↓
去年10月,利率高于3.3%的符合条件的存量房贷统一下调至3.3%(LPR-30BP)。此次调整后,存量房贷利率也将相应下调至3.2%。
不过,与新客户接下来立马可以享受最新利率不同的是,老客户要享受3.2%的利率,需要等上一段时间。
去年11月,房贷可重新选择利率重定价周期,大多数客户选择了3个月的周期,也就是利率3个月一调(遇LPR调整)。这就意味着,如果选择每季初1日作为重定价日的存量房贷客户,则7月1日即可调整为3.2%的利率。
售楼处热线:400-0909-525
售楼处热线:400-0909-525


评论