朝阳新房市场终于迎来刚需小户型,北熙区三期:得房率超90%的“好房子”,总价500万起



北熙区三期
北熙区一、二期共推出1234套房源,已签约825套,去化率66.86%。网签均价7.94万元/㎡。
北熙区2025年3月的降价引发老业主强烈不满。一套100㎡三居,2023年买入价约800万,2025年3月同户型降至650万,价差150万。上百名业主围堵售楼处维权,要求退房或补差价。最终开发商给出“赠送车位+物业费减免”的补偿方案,但大部分业主并不买账。
更严重的是交付问题。一期原定2024年底交房,先后延期至2025年3月、5月、9月,最终在2025年11月仓促交付。交付当日,600多户业主发现大量质量问题,集体拒收。直到2026年2月,仍有部分业主未收房。
京投发展·北熙区三期顶着“朝阳首个刚需好房子”光环的项目,从报规到开盘历经整整一年的争议。356条公众反馈、两度延期开盘、一二期降价维权……当所有开发商都在卷三面宽、卷会所、卷大门时,北熙区三期却反其道而行之:一梯三户、两梯三户、116㎡两面宽、无大门无会所。500多万上车朝阳双地铁,是真香还是真坑?

2021年12月24日,北京第三批集中供地,东坝车辆基地综合利用项目1101-A002-3地块(即北熙区三期用地)挂牌出让。由于地块体量大、总价高(起拍价70.7亿元),加上车辆段上盖开发技术复杂,最终只有京投发展一家报名,以底价70.7亿元成交。指导价8.6万/㎡。

北熙区三期的规划方案于2025年8月首次公示,随即引发大量争议。朝阳区规自分局共收到356条公众反馈意见,主要集中在以下几个方面:
1. 阳台和设备平台赠送是否合规:部分业主担心后期无法封闭阳台,或设备平台不计入产权存在风险。
2. 梯户比过高:18层小高层采用两梯三户,早高峰候梯时间长。
3. 缺少社区配套:无会所、无风雨连廊、无架空层。
4. 建筑间距和采光:南北排楼栋间距49-52米,但部分低楼层可能被遮挡。




直到2026年1月,规自分局才发布反馈采信通告,基本维持原方案,仅对部分细节进行调整(如楼梯方向从南北改为东西)。从报规到获批,整整花了5个月,比正常周期多出2个月。这也是三期原定2025年底开盘、最终推迟到2026年五一的原因之一。
项目信息

北熙区三期共12栋楼,北排6栋18层小高层,南排6栋10-11层洋房。总户数1358户,容积率仅1.79,是东坝板块容积率最低的新盘(保利天汇容积率2.2,德贤御府2.8)。

占地面积:7.73 万平米
建筑面积:13.7 万平米
容积率:1.774
高度: 规划 80m/实际 56.15m
建筑类型:小高层/洋房,10-18 层
楼栋:共12 栋
户数:1358 户,先开696 套
产品层高:3-3.2 米
面积区间:72 平-136 平
梯户比例:1T2,1T3,2T3
外立面:铝板+玻璃
交房标准:精装
交房时间:2029 年6 月
车位比:1:1.2
物业:开发商自持
物业费:待定
得房率: 小高层88%,洋房93%
样板间预计4月20号到月底开放
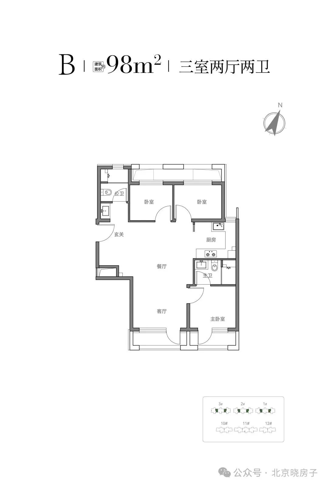
两个样板间77/98平
单价预计7万左右(具体价格以开盘为准,除开发商优惠以外还有额外团购优惠)
户型套数:1-3#楼72平162套
84平54套
98/99平162套
115平108套
10-12#楼78平70套
111平80套
136平60套

户型介绍

北熙区三期所有户型均赠送南向开敞阳台(进深大概1.2米)和北向设备平台(进深1米)。加赠送得房率能到90%。目前户型图出来了,但是不带尺寸,所以还不清楚每个空间大小。







社区品质
北熙区三期明确宣布:无气派大门、无首层架空、无风雨连廊、无下沉庭院会所、无水系景观。
根据项目宣传资料,主入口仅为一个约6米宽的简约门廊,搭配道闸和保安亭。
北熙区三期的大门甚至不如一些限竞房。京投给出的解释是“回归居住本质,不做无用装饰”,但500万起步的房子连个体面的门头都没有,实在说不过去。
项目以“风谷之境”为主题,规划1.6万㎡绿化面积。设计语言为现代简约,主打疏林草地+线性铺装+艺术装置。

绿化面积大,楼间距宽(49-52米),中庭开阔。但是没有标志性景观(如中央水景、儿童乐园、阳光草坪剧场),植物搭配以草坪+灌木为主,缺乏层次感。与一期二期的“TOD花园城市”主题相比,三期园林明显降标。
完全没有架空层与会所。业主未来休闲、会客、健身只能去室外或周边商业。对比保利天汇配建约800㎡地下会所(含泳池、健身房、书吧),北熙区三期在社区运营上几乎为零。

铝板+玻璃幕墙,暖银色铝板搭配香槟金线条。这是北熙区三期为数不多的亮点之一,颜值在线,且铝板耐候性强,未来二手溢价更有保障。

周边配套

交通配套:地铁12号线东坝西站:楼下就是,3站到望京(约8分钟),10站到国贸(约30分钟)。12号线贯穿北三环,连接四季青、三元桥、酒仙桥、东坝。
地铁3号线:东坝北站换乘,7站到朝阳公园(约30分钟),7站到工体(约35分钟)。

商业配套:恒大城市广场:距离约1公里,已开业,有永辉超市、影院、餐饮。
万达广场东坝店:距离约1.6公里,2025年12月开业,体量18万㎡,是东坝最大的商业综合体。
金隅嘉品Mall:距离约2.5公里,已开业多年,以家庭消费为主。
在建TOD商业:北熙区整体规划了约5万㎡商业配套(包括商业街、办公楼)。
教育配套:北京中学东坝校区:距离约800米,是朝阳区重点中学(高中部一本率超90%)。但新房不能划片,需等教委派位。周边还有北京中学二分校、朝阳实验小学东坝校区。

项目配建小学:社区内规划一所18班小学,2026年开工,2027年投用。引入哪所学校尚未确定。
生态环境:坝河滨水公园:距离约300米,正在改造中,规划为滨水步道+亲水平台+休闲广场。预计2026年底完工。
东坝郊野公园:距离约2公里,面积超3000亩,是朝阳区最大的郊野公园。

未来升值

第四使馆区:东坝北区规划为第四使馆区,未来将有40多个国家入驻,带动周边国际化配套。
第二三里屯:坝河沿线规划“第二三里屯”商业街区,对标三里屯太古里。
我想知道第四使馆区和第二三里屯到底什么时候能落地。
北京中学集团化:东坝多所学校纳入北京中学教育集团,教育质量有望提升。
核心优势:
1.占位东坝北区核心,踩中北京向东发展的核心风口,规划层级高,未来5-8年完全成型后价值空间巨大;
2.地铁、学校、生态、商业四大核心配套全落地,自住无短板,无需长期等待规划,买了就能享受成熟配套;
3.产品力能打,3米层高、90%得房率、高标准精装,自住舒适度远超同类刚需、刚改盘;
4.总价友好,500万起即可上车朝阳核心新区,是刚需、刚改人群的难得机会;
缺点:
1.区域仍处于发展初期,完全成熟需要5-8年时间,并非一两年就能变成繁华商圈,需要持有长期持有的心态,不能急于求成;
2.现阶段板块人气还在培育中,商业氛围尚未达到顶峰,坝河景观也处于起步修缮阶段,城市界面仍在逐步完善;
3.周边部分区域仍在建设施工,短期内居住氛围比不上朝阳老牌成熟城区。
但这些不足,都是新区发展的正常过程,没有任何一个城市新区能一蹴而就,当年的望京、亦庄,也都是经过多年发展才走向成熟。只要你认可东坝北区的核心规划,愿意给区域成长时间,这些暂时的不足,都会慢慢转化为优势。
如果你是预算有限的朝阳通勤刚需,北熙区三期可能是你“不得不买”的选择。但如果你是改善或投资,建议三思而后行。
北熙区三期预计4月20日开放样板间,五一前后开盘。
1、创作不易,欢迎大家转发分享、点赞、私信!
2、我们提供最新房产资讯、解疑答惑房产政策及房产交易,分享购房、选房实用策略。提供一对一专业购房指导,专车接送,新房团购优惠等服务!
3、我们不会过度解读政策,不会随意预判市场走势,我们只是深入各大售楼处,随时在一线获取最新资讯,用我们的从业经验和专业知识,来解决您购房路上遇到的一切问题!
北京最新最全最真实的房产信息尽在“北京新房之家”
集真实的信息,用诚挚的服务
历多年的经验,达完美的合作

所有服务均不收取任何费用,购买新房无差价、无中介费,并能享受额外团购优惠。



评论